• 建筑效果图

    正面效果图

    正面效果图

    鸟瞰图

    鸟瞰图

    内庭院

    内庭院
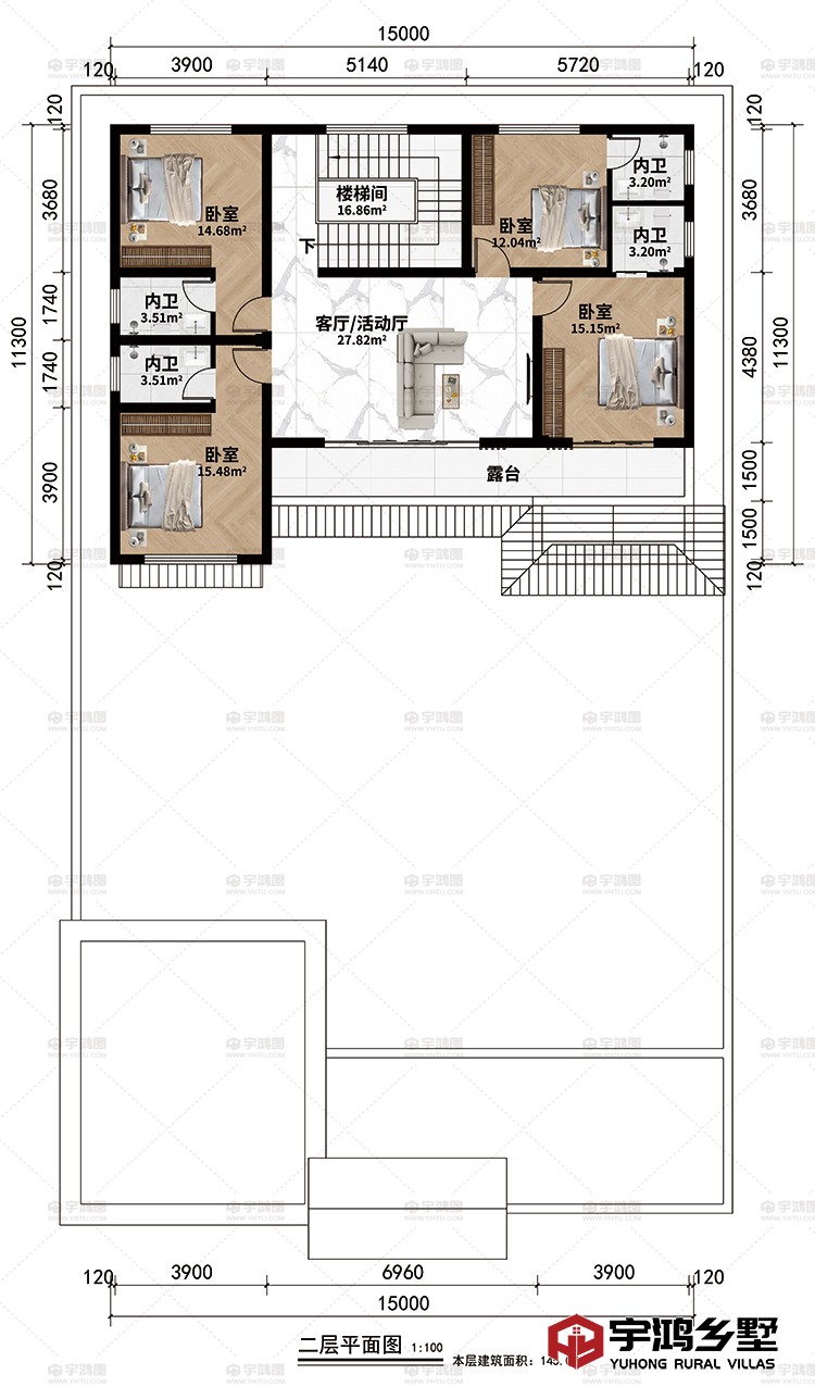
    平面方案图

    一层:前院、中心景观、凉亭、2门厅、客厅、茶室、玄关、餐厅、厨房、楼梯间、棋牌室、卧室、洗漱间、公卫、内卫、车库

    一层:前院、中心景观、凉亭、2门厅、客厅、茶室、玄关、餐厅、厨房、楼梯...

    二层:楼梯间、客厅/活动室、4卧室、4内卫、露台

    二层:楼梯间、客厅/活动室、4卧室、4内卫、露台
    建筑立面图

    正立面

    正立面

    背立面

    背立面

    侧立面

    侧立面

    侧立面

    侧立面
16.76米x27.88米中式二层别墅全套图纸
¥1980.00元
图纸编号:YH-2-6155
层数:
结构形式:
建筑风格:
占地面积:
493.00㎡
开间:
16.76m
进深:
27.88m
建筑面积:
347.34㎡
主体造价:
32万-45万(仅供参考)

请您在下订单前与在线客服确认配送范围。

您在本站订购的图纸,我们客服人员会电话与您联系确认图纸编号、收货信息等, 感谢您对本站的关注,祝您网上购物愉快!

人气排行

14x15米两层欧式农村别墅图纸

14x15米两层欧式农村别墅图纸

规格: 14.54m*15.34m
占地: 179.50平

农村三层新中式别墅复式客厅占地131平

农村三层新中式别墅复式客厅占地131平

规格: 10.80m*13.10m
占地: 131.50平

两层欧式自建别墅设计图占地236平

两层欧式自建别墅设计图占地236平

规格: 12.00m*20.00m
占地: 236.50平

占地450平三层框架中式别墅设计图

占地450平三层框架中式别墅设计图

规格: 23.76m*19.56m
占地: 449.70平

占地160平1511带露台现代别墅设计图纸

占地160平1511带露台现代别墅设计图纸

规格: 11.60m*15.30m
占地: 161.50平

三层中式自建房设计图纸,超好看

三层中式自建房设计图纸,超好看

规格: 28.02m*14.00m
占地: 292.00平

90平小面积二层农村别墅设计图造价20万

90平小面积二层农村别墅设计图造价20万

规格: 11.00m*10.10m
占地: 90.70平

150平新中式两层别墅设计图纸

150平新中式两层别墅设计图纸

规格: 15.60m*13.00m
占地: 147.70平

占地266平造价43万-55万新中式风格农村自建别墅

占地266平造价43万-55万新中式风格农村自建别墅

规格: 19.96m*14.02m
占地: 266.22平

一层新中式三合院设计施工图 占地289平

一层新中式三合院设计施工图 占地289平

规格: 22.00m*18.00m
占地: 289.00平

中式风格14x11砖混结构别墅设计图纸

中式风格14x11砖混结构别墅设计图纸
开间:14.76m米
进深:11.76米

中式风格14x8砖混别墅设计图纸

中式风格14x8砖混别墅设计图纸
开间:14.36m米
进深:8.76米

15x12占地174平别墅设计图纸

15x12占地174平别墅设计图纸
开间:15.11m米
进深:12.97米

刘 战
室内设计师
10年以上
19118851793
何登机
结构施工图设计师
7-9年
15844552353
黄坚
建筑施工图设计师
10年以上
18008487106
您的姓名:
您的电话:
注册成功后可以查成品图纸的建施图